School building rooms details 2d view CAD drawings dwg file
Description
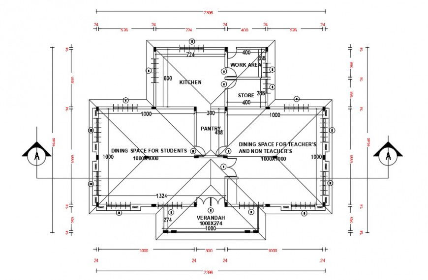
School building rooms details 2d view CAD drawings dwg file that shows school kitchen area details along with dimension hidden line dteials. Floor level details with dining area detail also included in drawings.
Uploaded by:
Eiz
Luna

